목차
변화의 시작
더 나은 삶을 향해 움직이는 것은 자연스러운 일입니다. 다만, 그러한 방향을 스스로 찾아내는 것이 어렵다면, 누군가의 도움이 필요합니다. 발달장애는 대부분 중도장애가 아닌 선천적 이유로 생겨나며, 어린이가 자라나는 과정에서 발견되는 장애입니다. 그러다 보니 이들을 양육하는 부모, 가족, 보호자가 이들의 대변인이 되어 그들의 어려움과 문제를 알리고, 사회적 지원과 제도가 필요함을 요구하는 역할을 해왔습니다. 수십 년동안 계속된 이들의 노력으로 적지 않은 것이 바뀌었습니다. 최소한 고등학교까지 보장되는 특수 교육의 울타리를 마련하였고, 학교를 졸업하고 성인이 되어 갈 수 있는 일자리의 양이 늘어나는 데에도 영향을 미쳤습니다. 하지만, 이제는 개인과 가족이 아닌 사회가 적극적으로 그 다음 단계를 고민하고 선례를 만들어 가야할 때입니다.
강동그린나래복지센터는 발달장애인이 일과 건강한 생활 사이의 균형을 맞추며 지역사회 안에서 함께 살아가도록, 발달장애인 보호작업장에 별별체육관을 결합한 직업재활시설의 새로운 모델을 만들어 낸 사례입니다. 이러한 새로운 모델에 대한 비전은 발달장애인의 근로와 복지를 위해 노력해온 베어베터와 (사)한국자폐인사랑협회에서 시작되었습니다. 이를 현실화하기 위해 필요한 공간 리노베이션 기금은 베어베터 김정호 대표의 후원금 4억에서 시작되었고, 한국자폐인사랑협회의 자체 모금 캠페인으로 초과된 금액을 마련하여 충당하였습니다. 이전의 공간부터 실질적인 운영을 맡아 온 센터의 직원들은 내·외부의 변화를 겪어내며 새로운 모델을 구축하고 가동하기 위한 준비에 전념했고, 사회를 변화시킬 새로운 모델을 만든다는 취지에 공감한 건축가와 디자이너가 프로젝트에 합류하여 힘을 보탰습니다.
강동그린나래복지센터는 274평 규모의 3층 건물의 전체 리노베이션을 마치고 발달장애인이 지역사회에서 균형있는 삶을 일굴 수 있는 일터이자 생활거점을 만드는 첫 발을 떼었습니다. 이 기록은 그 변화의 과정에 참여한 다양한 주체들의 목소리를 통해 조금 더 나은 방향, 더 나은 방법을 찾으려는 이들이 사회에 질문을 던지고, 이를 해결할 방법을 찾아가는 과정의 고민과 결정들을 담고자 하였습니다. 변화의 과정에 함께 한 이들의 수고에 대한 헌사이자, 더 나은 삶을 위한 변화를 만들어내려는 이들을 응원하는 희망의 기록이자 실용적인 참고자료가 될 수 있길 기대합니다.
Gallery
'일 터'에서 '삶 터'까지
‘일자리를 얻는다’라는 것은 일과 그 대가로 받는 돈 외에도 사회적 공간과 관계를 얻음을 내포하는 말입니다. 특히나 우리 사회에서 사회적 관계를 맺을 기회가 제한적인 발달장애인들에게는 더욱 큰 의미가 있습니다. 이들이 하루 중 많은 시간을 보내는 작업장의 변화가 이들의 일상 경험과 삶을 살아가는 자세를 크게 바꾸리라는 믿음으로 강동그린나래복지센터의 변화는 시작되었습니다.
하지만 직원들의 월급을 주는 것만도 빠듯했던 보호작업장의 현실에서 이러한 변화를 만드는 일은 참으로 쉽지 않았습니다. 공간의 리노베이션은 민간 후원자의 기금 덕분에 상대적으로 수월하게 이루어질 수 있었습니다. 하지만, 앞으로 이 공간에서 벌어질 진짜 변화를 만들어내야 하는 건 결국, 이 공간을 꾸려가는 운영자들의 몫입니다.
이러한 변화를 위해 강동그린나래복지센터에서는 많은 준비를 하고 있습니다. 그 준비 중 하나로 발달장애인 근로자의 건강한 삶을 위해 몸과 마음의 건강에 도움이 될 맞춤형 체육 활동과 삶에 활기를 더해줄 취향에 맞는 다양한 활동 프로그램을 준비하고 제공할 예정입니다. 또한, 발달장애인 직원의 다른 활동이 늘어난 만큼 줄어든 근무시간과 매출을 보전하기 위한 부가적인 노력도 더해지고, 다양한 직군을 추가로 개발하고 적성에 맞는 직무 훈련과 근무 경험을 제공하기 위한 변화도 시작되었습니다. 발달장애인 근로자 뿐만 아니라 그들과 함께하는 보호자들이 잠시 숨을 돌리며 쉴 수 있고, 함께 유대감을 쌓을 수 있는 공간이 되는 것도 센터의 중요한 역할 중 하나가 될 것입니다.
한달이라는 짧은 시간에도 발달장애인 근로자분들이 보여주는 변화는 놀랍도록 고무적입니다. 한결 밝아진 표정과 밝은 웃음은 새로운 시도를 위한 그간의 노력이 참으로 값진 일이었음을 보여줍니다. 우리 사회에서 소외된 곳을 밝히는 따뜻한 마음으로, 사회복지를 자신의 업으로 삼은 운영진들에게도 이러한 변화가 새로운 희망과 도전할 수 있는 용기를 주는 힘이 되길 바랍니다. 새로운 길을 걸어갈 강동그린나래복지센터에 앞으로도 많은 응원과 지원이 이어지길, 이들이 만들어내는 변화가 발달장애인과 함께 하는 모든 분에게 긍정적인 희망의 대답으로 전해지기를 바라봅니다.
Gallery
어떤 공간이 되어야 할까
‘어떤 공간을 만들 것인가’라는 질문은 공간을 어떻게 구획하고 마감재를 무엇으로 선택할 것인지를 결정하는 과정이라 오해하기 쉽습니다. 하지만 이 질문은 그보다 훨씬 더 근본적인 내용을 규정하는 중요한 질문입니다. 바로 이 공간 안에 어떤 삶이 어떠한 방식으로 담길 것인가에 대한 깊은 고찰을 요구하고 있는 질문인 것이지요.
발달장애인 보호작업장의 새로운 변화를 위한 공간 리노베이션 프로젝트를 맡게 된 두 건축가는 공간 안에 담기게 될 삶을 이해하기 위해 우선 각종 문헌 조사와 현장 관찰 조사, 인터뷰 등에 공을 들이고, 공간의 방향을 결정하기 위한 여러 지표를 마련하였습니다. 그리고 그에 따라 만들어지는 설계안들이 각각 의미하는 바를 프로젝트에 함께하는 협의체 일원들에게 설명하며 ‘어떤 공간을 만들 것인가’에 대한 의사 결정 과정에 모두를 끌어들였습니다. 질문과 피드백이 오가는 과정에서 빈칸들이 조금씩 채워졌고, 모호했던 방향이 또렷해졌습니다. 그리고 무엇보다 중요한 것은 그 과정을 모두 함께 고민하며 지켜보았고, 그 결과 모두가 머릿속에 같은 상(image)을 그려나가게 되었다는 점입니다. 함께하는 논의를 통해 서로 영감을 주고받으며, 앞으로 해나가야 할 각자의 역할과 방향도 명확해지는 효과가 있었던 거죠.
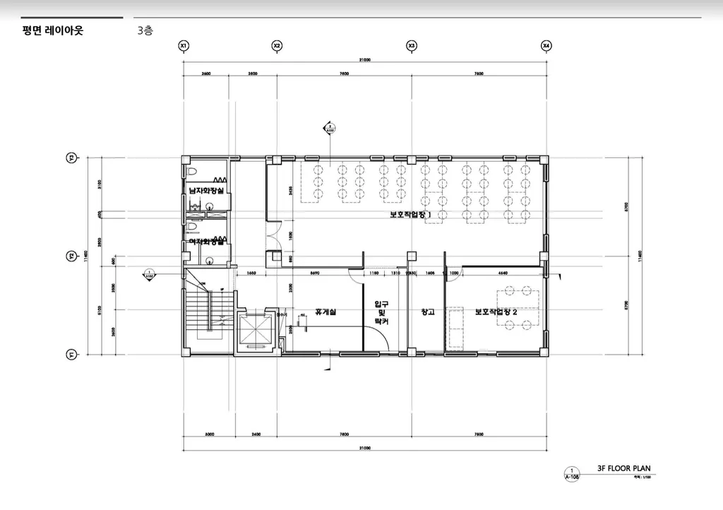
강동그린나래복지센터의 공간은 발달장애인 근로자가 공간의 주인이 되는, 공간의 지지와 지원을 받으며 보다 안정적이고 편안한 생활을 영위할 수 있는 그런 공간으로 새롭게 태어났습니다. 가장 큰 공간의 변화는 1층에 있던 작업장이 3층으로 이동하는 대신 1층은 다양한 활동이 이루어질 수 있는 열린 공간으로 변화하였다는 점입니다. 이를 통해 이 건물의 주 사용자인 발달장애인 근로자뿐만 아니라 그들의 보호자와 지역사회의 다양한 일원들까지 편안하게 교류하고 관계를 만들어낼 수 있는 ‘환대의 공간’으로 활용할 수 있게 되었습니다. 2층에는 발달장애인 근로자들의 몸과 마음의 건강을 책임질 별별 체육관이 들어왔고, 공간을 크고 작은 두 구역으로 구획하여 다양한 활동과 유연한 대응이 가능하도록 설계하였습니다. 3층은 작업 프로세스에 맞춰 공간을 배열하고 사람과 사물의 동선을 구별하였으며, 감각이 예민한 발달장애인이 공간을 보다 편안하게 느낄 수 있도록 빛, 소음 등의 자극을 줄이는데 집중하였습니다.
강동그린나래복지센터의 새로운 공간이 만들어지는 과정에서의 고민과 결정을 하나하나 살펴보면, 공간에서 겉으로 보여지는 스타일만 중요한 것이 결코 아님을 알 수 있습니다. ‘발달장애인을 위한다’는 말이 단지 수사적인 표현으로 그치는 것이 아니길 바라며, 공간을 사용하는 이들에게 실질적인 도움이 되는 공간을 만들어내기 위해 다 함께 고민하였기에 비로소 제대로 힘을 발휘할 수 있는 공간이 마련된 것이겠죠?
Gallery
공간이 내는 목소리
공간이 직접 말을 할 수 있다면 어떨까요? 고유한 목소리로 자신을 찾아와 준 이들에게 다정한 인사를 건네고, 그 안에서 하루를 보내는 이들과 소소한 이야기를 주고받으며 관계를 쌓아간다면, 공간과 사람의 관계가 달라질 수 있지 않을까요? 그렇게 공간이 자신의 목소리를 갖게 해주는 일이 공간의 ‘커뮤니케이션 디자인’이라고 할 수 있습니다.
강동그린나래복지센터의 고유한 목소리를 만들어 준 것은 박초롱 디자이너(롱잉 디자인 스튜디오)와 박병준 디자이너(피치마켓)의 참여에서 비롯되었습니다. 이들은 공간의 설계가 다 완성되고 공사가 시작되기 직전의 시점에서 뒤늦게 참여가 결정되었습니다. 하지만 베어베터의 캐릭터 ‘베베’를 탄생시킨 경험이 있는 박초롱 디자이너의 역할에 대한 신뢰와 기대가 있었고, 발달장애인으로 특별한 재능을 보여주고 있는 박병준 디자이너의 참여가 공간의 의미를 더하여 줄 것이라는 점은 분명했죠.
이들의 가장 큰 업적이라면 공간 곳곳에서 활기를 불어넣으며 맹활약하고 있는 ‘브라보 비버’ 캐릭터를 탄생시킨 일일 것입니다. 이곳이 발달장애인 근로자가 함께 모여 일하고 살아가는 곳인 만큼, 스스로 자신의 집을 짓고 부지런히 삶을 살아가는 동물 ‘비버’를 이 공간의 주인을 대변하는 캐릭터로 삼아 활용하였습니다. 이 외에도 공간의 구성을 안내하는 사이니지부터 공간을 소개하는 브로슈어 제작까지 폭넓은 범위에서 커뮤니케이션 디자인 작업이 진행되었습니다.
공간이 건네는 말에 담긴 약속이나 규범이 공간의 문화로 자리 잡기 위해서는 공간 구성원이 정말로 그렇게 생각하고, 일상에서 반복하여 활용하는 것이 중요합니다. 그만큼 이 공간에서 어떤 메시지를 전할 것인지에 대한 고민과 결정, 어떻게 말을 전할지에 대한 감수 등 세밀한 논의가 필요한 과정이었습니다. 이는 발달장애인과 밀접한 관계를 맺으며 공간을 운영해온 주체들의 제안과 쉬운 언어로 의사소통하는 콘텐츠를 만들어 온 피치마켓의 참여로 가능할 수 있었습니다.
커뮤니케이션 디자인은 처음에 만들어진 그대로 완성되는 것이 아닙니다. 커뮤니케이션은 계속해서 활용될 때에만 그 생명력을 유지할 수 있기 때문이죠. 커뮤니케이션 디자인에 참여한 두 디자이너가 새로운 공간에서의 적응기를 거친 후에 발견되는 부가적인 필요에 대응하는 것까지를 자신들의 할 일이라고 생각하고 있는 이유입니다. 한동안은 전문가의 도움이 더하여지겠지만, 그 이후에는 공간의 사용자들이 자발적으로 목소리를 이어가게 될 겁니다. 강동그린나래복지센터의 명랑한 목소리가 앞으로도 계속 이어지길 기대합니다.
Gallery
소통으로 짓는 건축
한국자폐인사랑협회 (김성천 부회장, 박성열 부회장, 박정숙 부장), 강동그린나래복지센터(최상진(전) 센터장, 손양금 부장, 김형선 팀장), 재능개발센터(김진희 센터장), 장애인단기보호시설 센터봄(류영미 (전)원장), 별별생활체육센터(김경욱 코치), 공간조성 후원기업 베어베터 (이진희 대표), 공일스튜디오(조재원, 이현진 건축가), 시공사 젬백스지오(윤수아 부사장, 이관희 이사,유선문 과장(현장소장)) ,커뮤니케이션 디자인(박초롱 디자이너) ,캐릭터디자인(박병준 디자이너)
위는 공사가 완공되고 재개관식을 한 2021년 6월 17일 기준으로 공간 리노베이션 계획 협의체의 주된 소통창구였던 카카오톡 그룹대화방의 참여자들입니다. 협의체는 2020년 8월 시작되어 새롭게 조성되는 공간의 지향점을 공유하고, 건축계획과 커뮤니케이션 디자인, 시공에 있어서의 크고 작은 의사결정, 프로젝트의 의미를 알리고 소통하는 후원 모금 캠페인, 재개관식에 이르는 일련의 과정들을 거치며 논의의 장이자 의사결정기구로서 역할을 했습니다. 수탁법인과 센터의 실무운영진, 표준작업장, 보호작업장, 직업재활 및 돌봄센터까지 성인기 발달장애인의 일과 돌봄의 사회적 환경에 대해 경험과 지혜를 가진 전문가들과 건축·디자인 전문가, 현장을 책임지는 시공사의 다양한 입장과 관점에서 자유로운 의견들이 오갔지만, 지향점에 대한 공감이 있어서 생산적인 논의가 가능했습니다.
센터의 입주 직전에 협의체는 공사 마무리 중인 현장을 둘러보기 위해 만났습니다. 다양한 입장과 관점에서 나오는 의견들이 교환되고 상호학습되는 과정이 충실한 성과를 낳는데 큰 영향을 주었다는 것에 십분 공감했습니다. 무엇보다 이런 과정의 소통은 물리적인 건축이 마무리되고 시작되는 본격적인 장소만들기의 기초가 됩니다.
Board view
Table
Timeline
열린책 아카이브
Board
Table
List
Table
List view
Table
Credit
아카이브의 모든 자료(브라보 비버 캐릭터 제외)는 크리에이티브 커먼즈 라이선스 중 'BY-NC-SA' (저작자표시-비영리-동일조건변경허락)의 적용을 받습니다. 브라보 비버 캐릭터의 저작권은 베어베터에 있으므로 허락없이 사용할 수 없습니다. 원저자가 있는 인용컨텐츠의 사용을 위해서는 원저작자의 허락을 받아야 합니다.
강동그린나래센터 공간조성




















































